Населений пункт
Івано-Франківськ
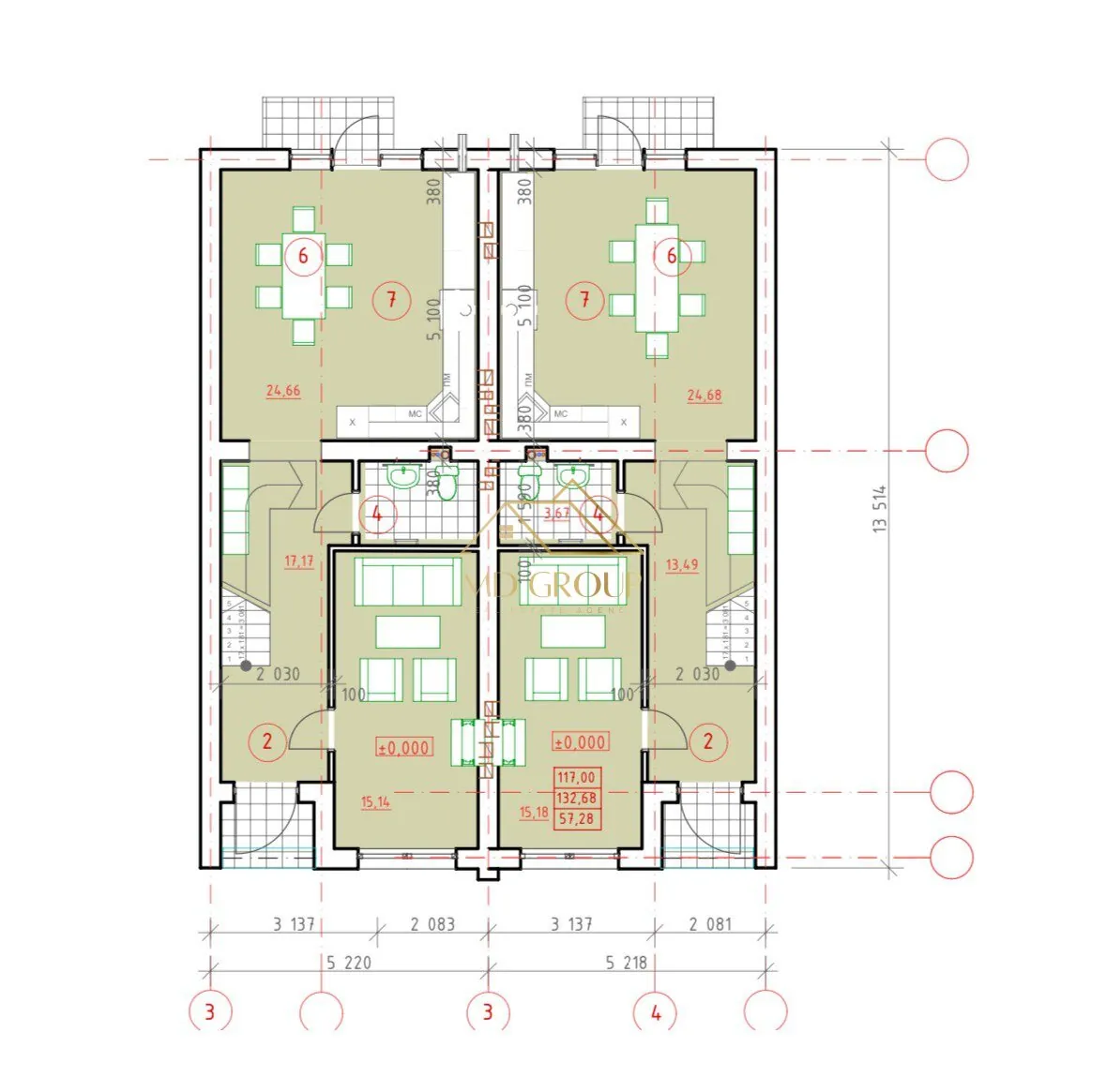
К-сть кімнат
4
Поверховість
3
Площа
174м²
Площа кухні
24.66м²
Ділянка
2 сотих
Стан
Сирець
Район
Микитинці
Вулиця
–
Забудовник
ПП
Комунікації
Електрика, Центральна каналізація, Центральний водопровід
Опалення
Електрика
Утеплення даху
Немає
Утеплення стін
Пінопласт 12 см
Матеріал стін
Цегла
Черга
2
Сходи
Є
Документи
–
ПРОДАЖ | КОТЕДЖ
$98 000

























