Населений пункт
Івано-Франківськ
К-сть кімнат
3
Поверховість
2
Площа
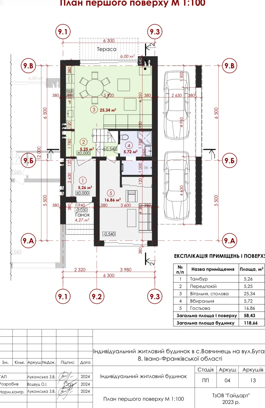
121м²
Площа кухні
25.34м²
Ділянка
1.51 сотих
Стан
Сирець
Район
Вовчинець
Вулиця
Бугая
Забудовник
–
Комунікації
Газ, Електрика, Центральна каналізація, Центральний водопровід
Опалення
Газ, Електрика
Утеплення даху
Мінеральна вата
Утеплення стін
Пінопласт 10 см
Матеріал стін
Цегла
Черга
3
Сходи
Є
Документи
–
ПРОДАЖ | КОТЕДЖ
$99 000




















