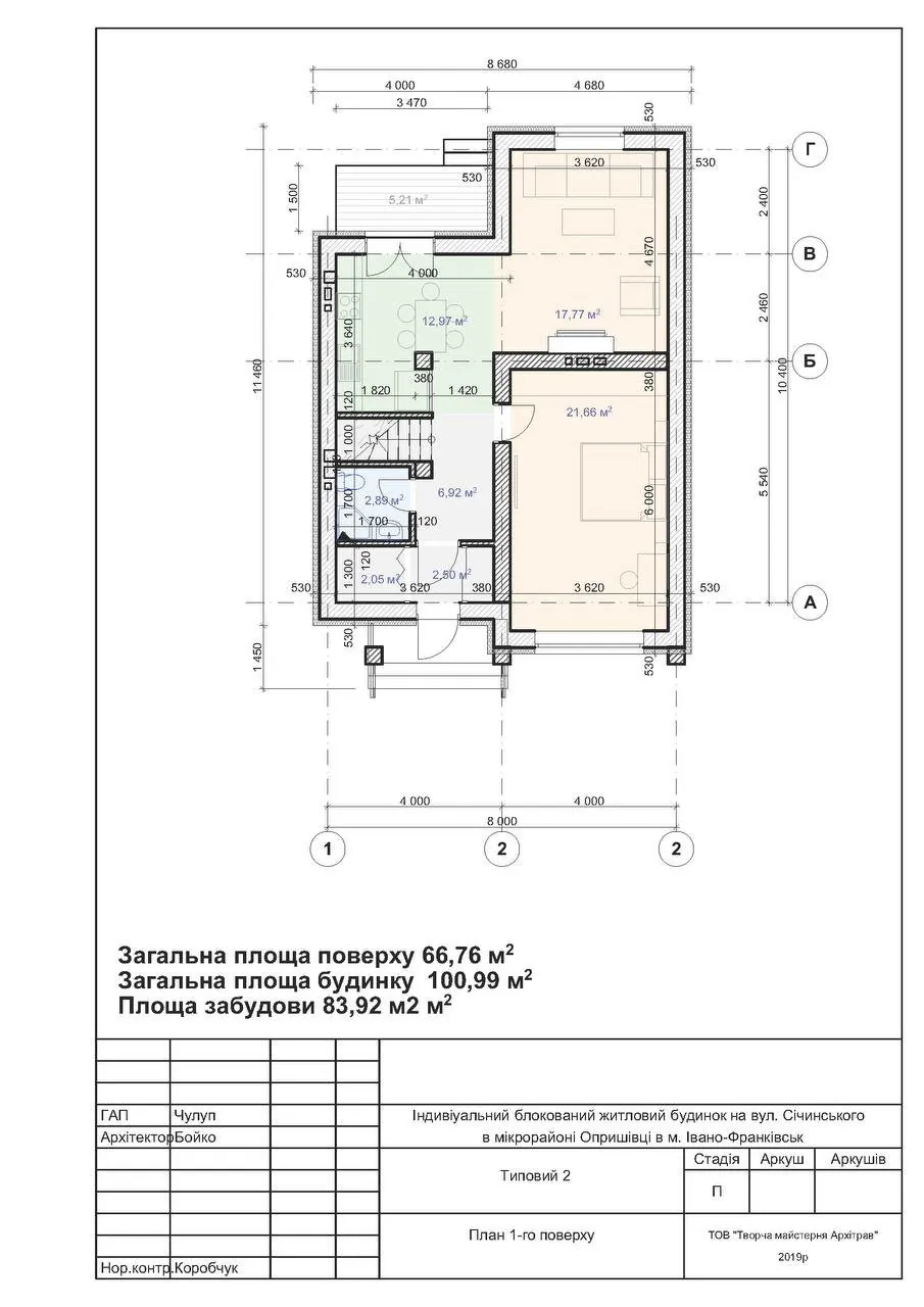
Населений пункт
Івано-Франківськ
К-сть кімнат
3
Поверховість
2
Площа
133м²
Площа кухні
16м²
Ділянка
1.8 сотих
Стан
Зданий сирець
Район
Опришівці
Вулиця
Січинського
Забудовник
–
Комунікації
Електрика, Свердловина, Центральна каналізація
Опалення
Електрика
Утеплення даху
Немає
Утеплення стін
Пінопласт 10 см
Матеріал стін
Цегла
Черга
–
Сходи
Є
Документи
–
ПРОДАЖ | КОТЕДЖ
$54 500











