Населений пункт
Івано-Франківськ
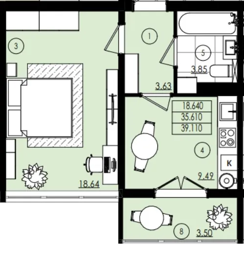
К-сть кімнат
1
Площа
39м²
Площа кухні
13м²
Поверх
8/10
Стан
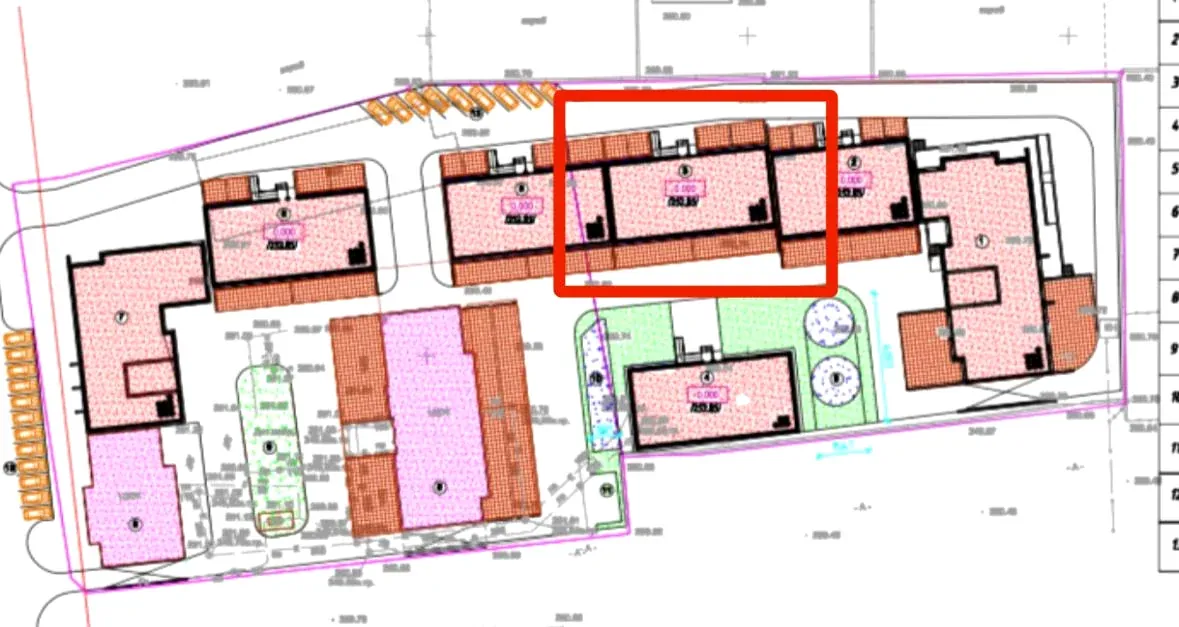
Сирець
Район
Микитинці
Вулиця
Декабристів
Забудовник
Стандарт-ІФ
ЖК
Вишневий
Черга
3
Секція
–
Під'їзд
–
Документи
–
ПРОДАЖ | КВАРТИРА
$26 500












