Населений пункт
Івано-Франківськ
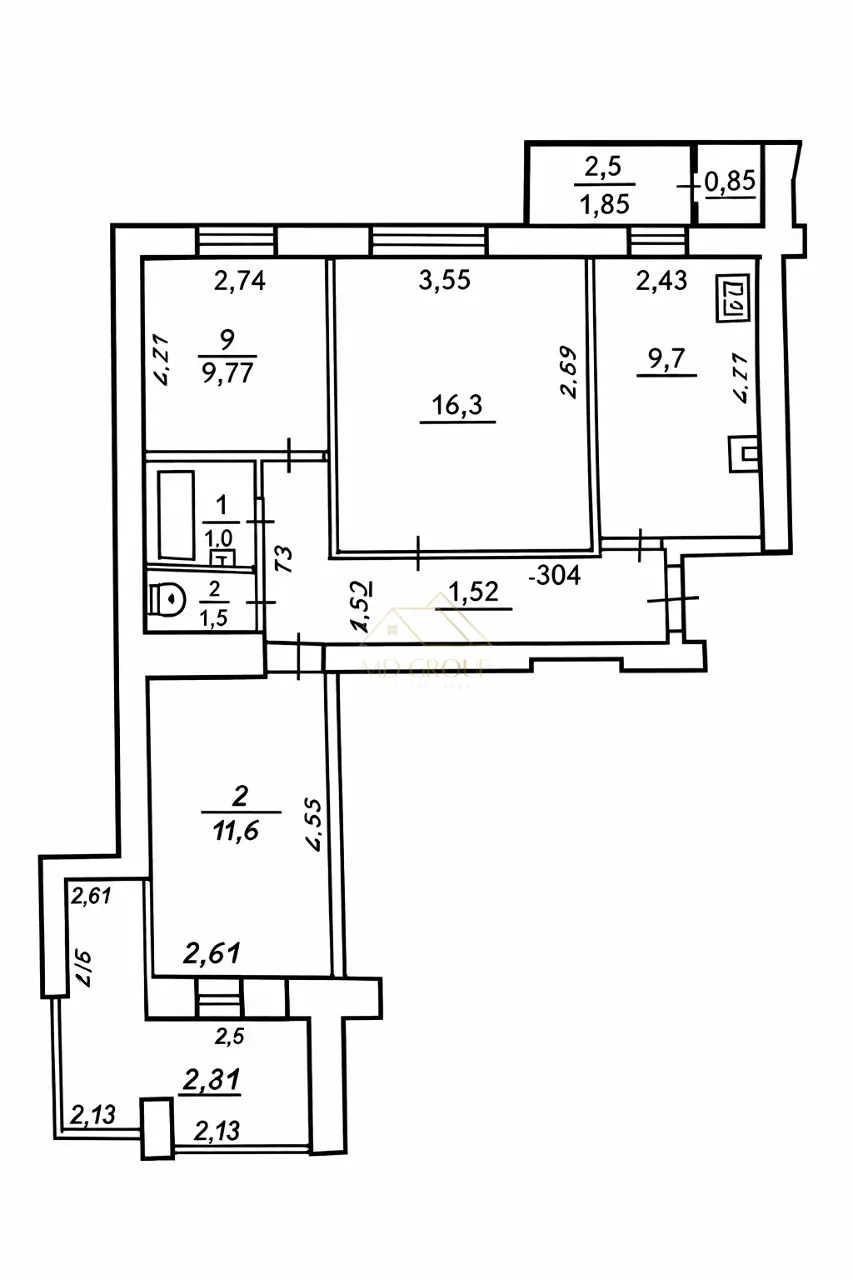
К-сть кімнат
3
Площа
64м²
Площа кухні
13м²
Поверх
4/9
Стан
Ремонт
Район
Пасічна
Вулиця
Федьковича
Забудовник
–
ЖК
–
Матеріал стін
Цегла
Опалення
Індивідуальне газове
Черга
–
Секція
–
Під'їзд
–
Документи
–
ПРОДАЖ | ВТОРИНКА
$67 500





















